DIPL.-ING. ROLAND MURSCHALL
Architekt und Sachverständiger
SKIZZEN
A.VLOTHOER STR. 7
BAD SALZUFLEN
Vorentwurf
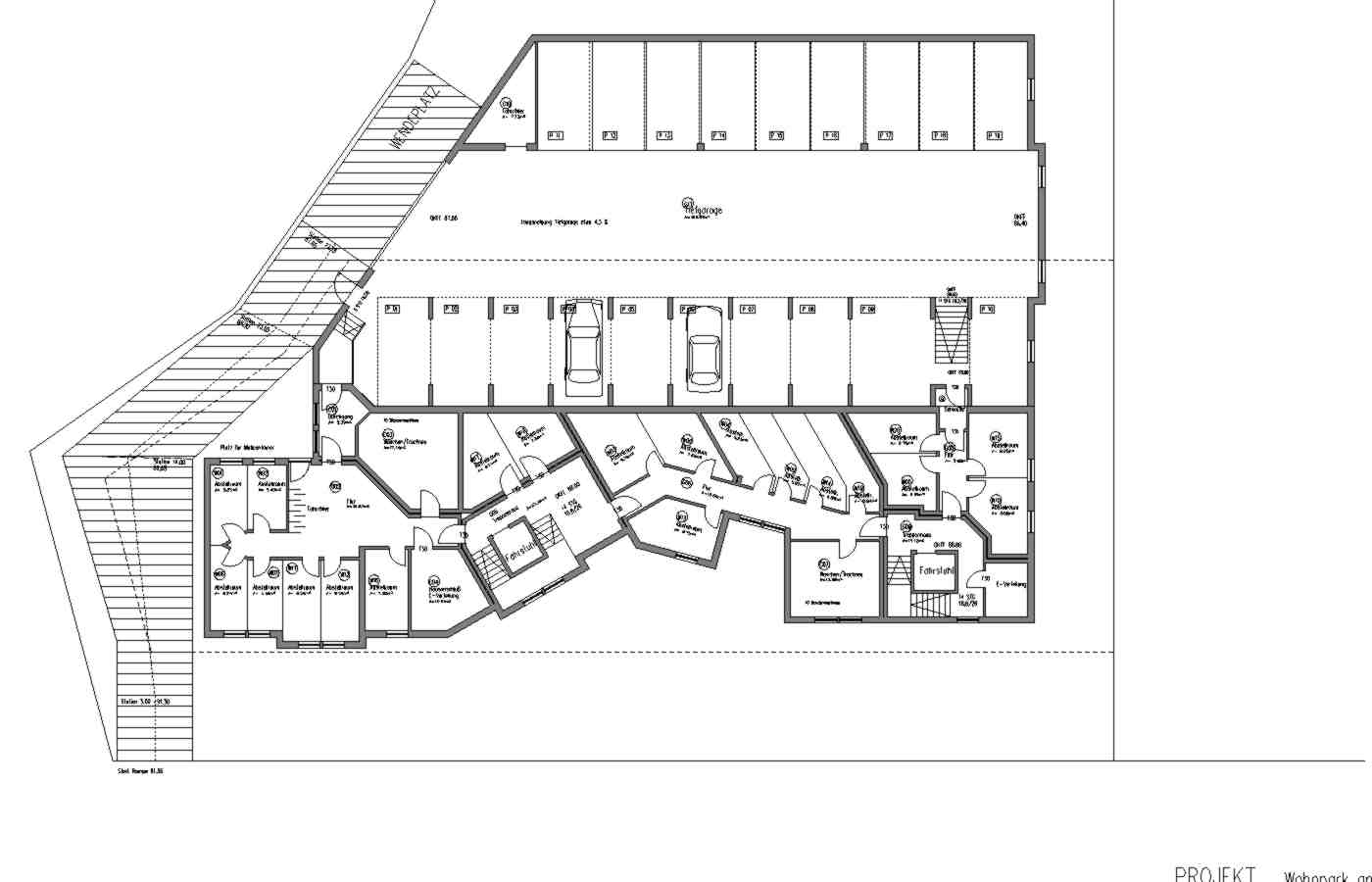
Grundriss Kellergeschoss
START
ARCHITEKT
SACHVERSTÄNDIGER
PROJEKTE
KONTAKT
IMPRESSUM