DIPL.-ING. ROLAND MURSCHALL
Architekt und Sachverständiger
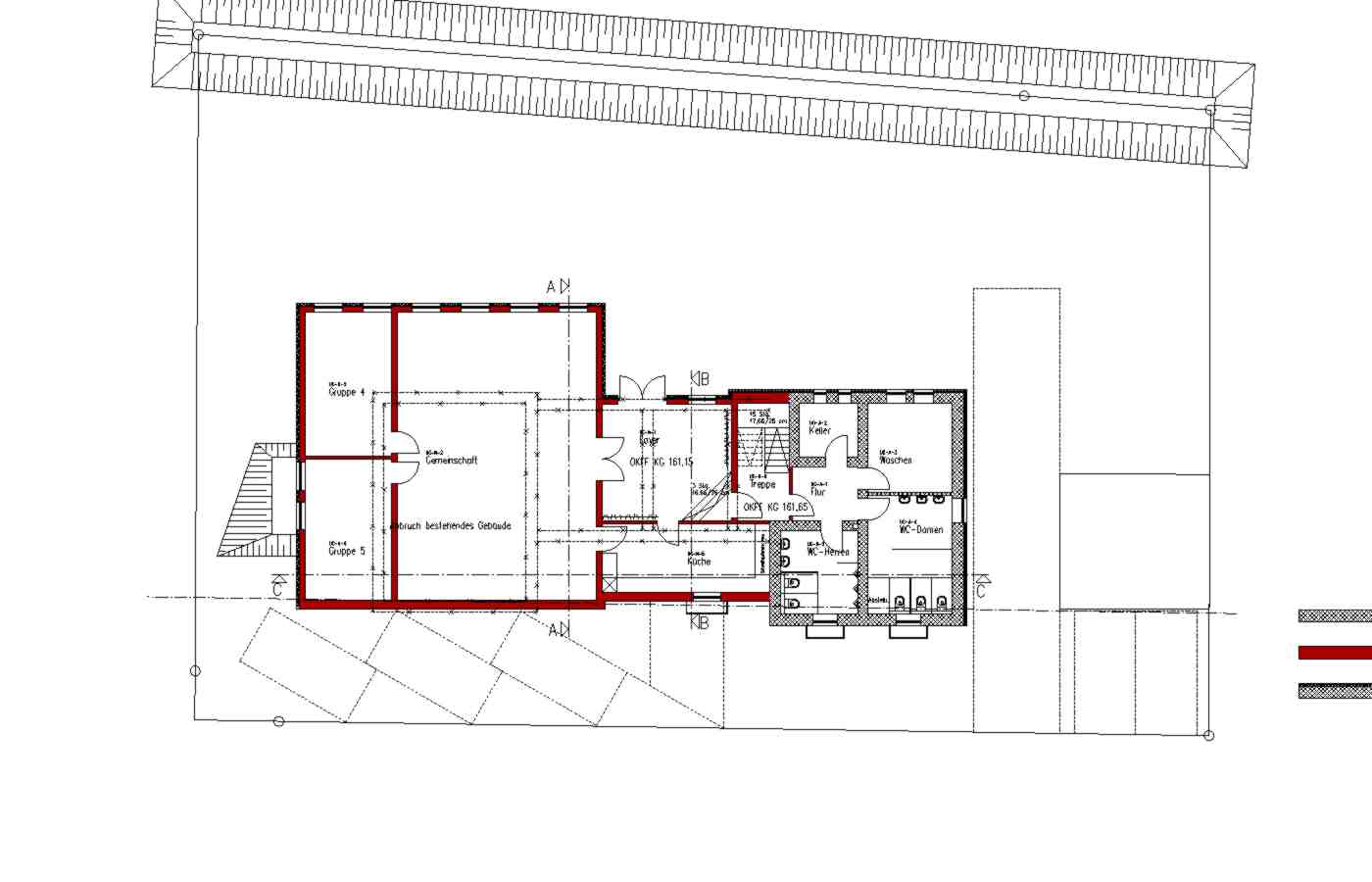
SKIZZEN
INSELWEG 8
AUGUSTDORF
Vorentwurf
Grundriss Untergeschoss
START
ARCHITEKT
SACHVERSTÄNDIGER
PROJEKTE
KONTAKT
IMPRESSUM