DIPL.-ING. ROLAND MURSCHALL
Architekt und Sachverständiger
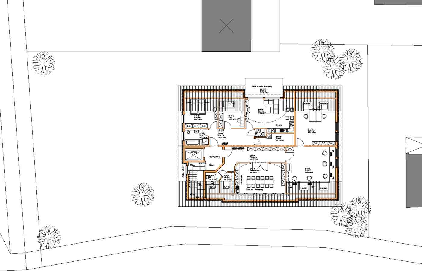
SKIZZEN
HAUPTSTR. 278
LEOPOLDSHÖHE
Vorentwurf
Dachgeschoss
START
ARCHITEKT
SACHVERSTÄNDIGER
PROJEKTE
KONTAKT
IMPRESSUM